WH in Sellessen

Um- und Anbau eines Einfamilienhauses zu einem Haus mit Einliegerwohnung Bräsinchener Straße in Sellessen

Vor dem Umbau

  • Zweigeschossiges Wohnhaus Baujahr 1930
  • Abmessungen:L=9,7m, B=9,10m
  • Dachkonstruktion: Satteldach, Ziegeldeckung
  • Decken: Holzbalkenkonstruktion
  • Wände: Ziegelmauerwerk (Reichziegel)
  • Wohnfläche: ca. 120 m²

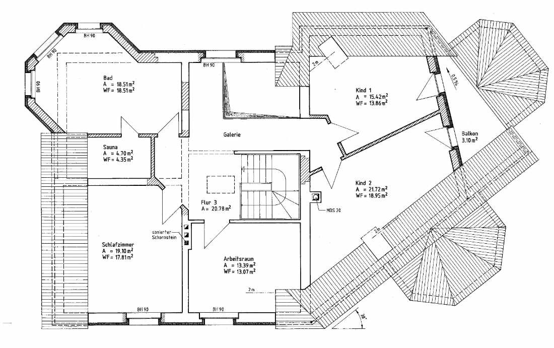
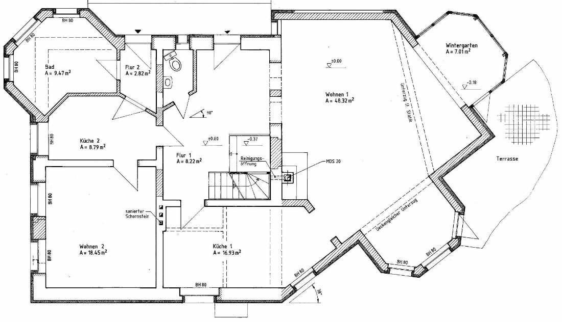
       Nach dem Umbau

  • Komplett modernisiertes und erweitertes Wohnhaus nach neuestem Standard, einschließlich Einliegerwohnung
  • Wohnfläche erweitert auf 192 m² zzgl. 38 m² Einliegerwohnung
  • Wintergarten und Terrasse mit attraktiver optischer Gestaltung
  • Neu gestaltete Außenanlagen

Umbauleistungen

  • Abbruch des Wirtschaftsgebäudes und Teilen des Wohnhauses
  • Sanierung der Fassade mit Vollwärmeschutzsystem
  • Anbau von Wohnräumen, Wintergarten und Erker; Material: Poroton
  • Um- und Neubau von Innenwänden, Decken und Dachstuhl
  • Erneuerung der Heizungsanlage, Installationen, Türen und Fenster, Treppenanlage
  • Sanierung des Schornsteins
  • Neugestaltung des Eingangsbereichs und der Außenanlagen
Planungsleistungen
  • Planung der o. g. Bauleistungen vom Entwurf bis zur Fertigstellung
  • Erfassung der vorhandenen Bausubstanz
  • Erstellen von Entwürfen mit Variantenuntersuchung
  • Kostenermittlung
  • Bauantrag, Antrag an die Untere Wasserbehörde
  • Genehmigungs-, Ausführungs- und Tragwerksplanung
  • Statik sowie Wärme-, Brand- und Schallschutznachweise